物件ID:196013
情報公開日:2026年03月20日
情報更新日:2026年03月20日
立地
-
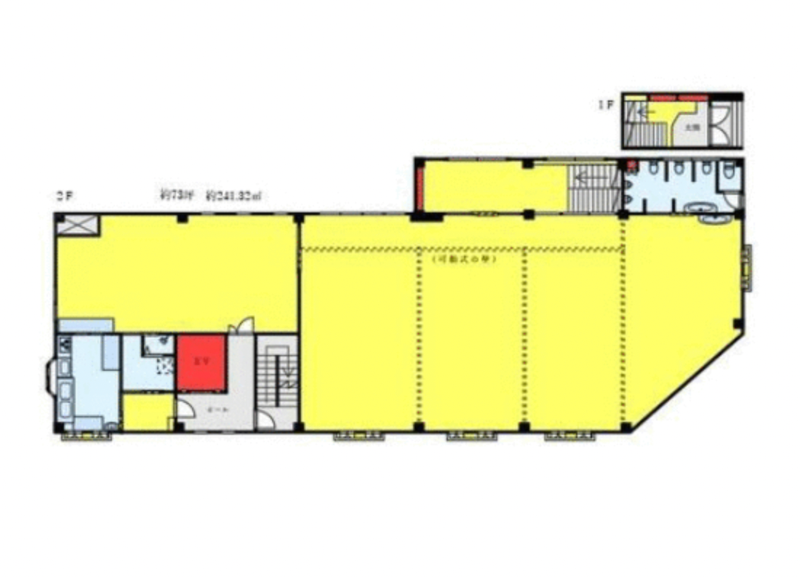
住所 東京都板橋区板橋一丁目36-1 建物名/所在階 T.Y.ビル/1~2階 最寄駅 東武東上線下板橋駅
徒歩3分近隣駅1 JR埼京線板橋駅
徒歩7分近隣駅2 都営三田線新板橋駅
徒歩7分
費用/契約
-
造作価格 ー 賃料(坪単価) 797,500円(10,924円) 管理費/共益費(坪単価) ー(ー) 保証金/敷金 3ヶ月 / 0ヶ月 償却 0% 礼金 1ヶ月 更新料/再契約料 ー その他費用 ー 仲介手数料 1ヶ月 その他手数料 ー 契約期間 3年 契約種別
用途
-
物件の現況 サービス(その他) 可能用途 指定あり 坪数 73.00坪
- 備考
- 前テナント業種:その他/ 業種補足説明:保育園
保育園の居ぬき予定(変更になる可能性あり・設備残置物)
退去時スケルトン返しですが、貸主と協議の上明渡し状態を決めます。























