物件ID:193834
情報公開日:2026年03月04日
情報更新日:2026年03月04日
立地
-
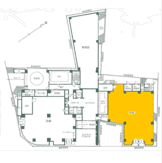
住所 東京都板橋区中丸町11-2 建物名/所在階 ワコーレ要町ビル 1F-2/1階 最寄駅 東京メトロ有楽町線要町駅
徒歩12分近隣駅1 JR山手線池袋駅
徒歩17分近隣駅2 ー
費用/契約
-
造作価格 ー 賃料(坪単価) 1,324,620円(19,799円) 管理費/共益費(坪単価) ー(ー) 保証金/敷金 ー / 10ヶ月 償却 1ヶ月 礼金 1ヶ月 更新料/再契約料 ー その他費用 保証会社必須 仲介手数料 1ヶ月 その他手数料 ー 契約期間 2年 契約種別 普通賃貸借
用途
-
物件の現況 サービス(その他) 可能用途 指定あり 坪数 66.90坪
- 備考
- 駐車場:有 23,000円/月 空き2台



















