物件ID:191739
情報公開日:2026年02月16日
情報更新日:2026年03月08日
立地
-
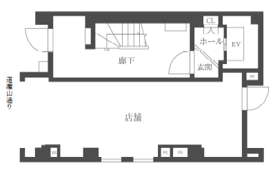
住所 東京都文京区千駄木三丁目48-8 建物名/所在階 リュクサンブール道灌山/1階 最寄駅 JR山手線西日暮里駅
徒歩6分近隣駅1 ー 近隣駅2 ー
費用/契約
-
造作価格 ー 賃料(坪単価) 196,900円(25,676円) 管理費/共益費(坪単価) 7,700円(1,004円) 保証金/敷金 ー / 2ヶ月 償却 ご相談 礼金 1ヶ月 更新料/再契約料 1ヶ月 その他費用 ー 仲介手数料 1ヶ月 その他手数料 ー 契約期間 2年 契約種別
用途
-
物件の現況 ー 可能用途 指定あり 坪数 7.67坪
- 備考
- 軽飲食·サロン·物販ショールームに最適!
高品質な設備と断熱·防音性能を兼ね備えた安心のブランド建築。
新築マンション1階部分。



















