物件ID:191642
情報公開日:2026年02月15日
情報更新日:2026年02月15日
立地
-
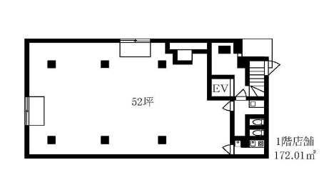
住所 東京都世田谷区尾山台二丁目29-17 建物名/所在階 アーバンスペース 1F/1階 最寄駅 東急大井町線尾山台駅
徒歩7分近隣駅1 東急大井町線等々力駅
徒歩12分近隣駅2 東急大井町線九品仏駅
徒歩13分
費用/契約
-
造作価格 ー 賃料(坪単価) 1,780,000円(34,230円) 管理費/共益費(坪単価) 6,600円(126円) 保証金/敷金 10ヶ月 / ー 償却 20% 礼金 1ヶ月 更新料/再契約料 ー その他費用 保証会社加入要 仲介手数料 1ヶ月 その他手数料 ー 契約期間 3年 契約種別
用途
-
物件の現況 サービス(その他) 可能用途 指定あり 坪数 52.00坪
- 備考



















