物件ID:175986
情報公開日:2026年01月08日
情報更新日:2026年04月10日
立地
-
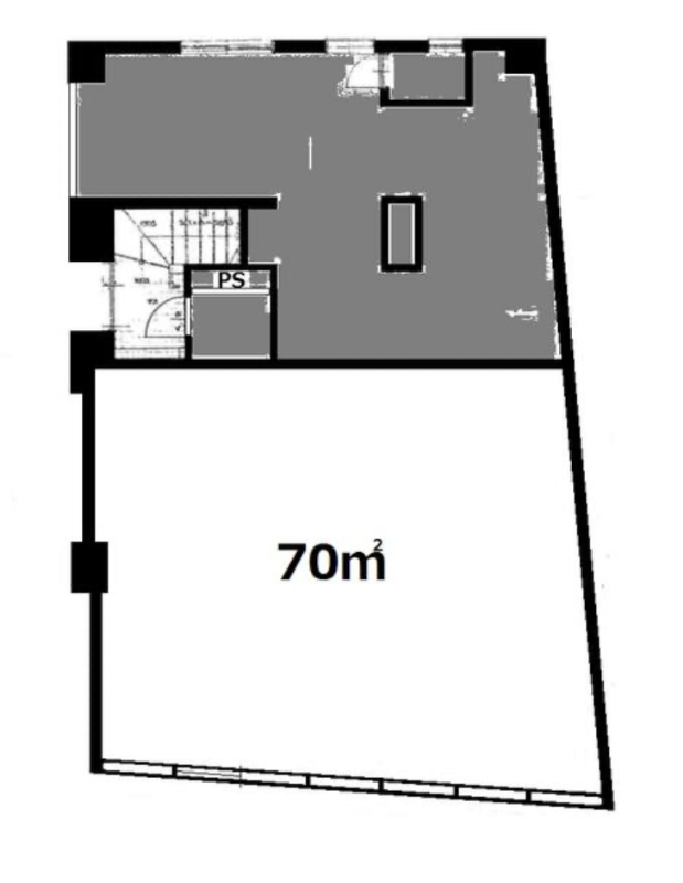
住所 東京都世田谷区上馬一丁目31-9 建物名/所在階 Sビル 1階/1階 最寄駅 東急田園都市線三軒茶屋駅
徒歩8分近隣駅1 ー 近隣駅2 ー
費用/契約
-
造作価格 ー 賃料(坪単価) 565,950円(26,727円) 管理費/共益費(坪単価) ー(ー) 保証金/敷金 6ヶ月 / ー 償却 30% 礼金 1ヶ月 更新料/再契約料 ー その他費用 ー 仲介手数料 1ヶ月 その他手数料 ー 契約期間 2年 契約種別 普通賃貸借
用途
-
物件の現況 ー 可能用途 指定あり 坪数 21.18坪
- 備考
- ガス以外は全て引き込みが必要 (水道・電気等)床上排水
ダクト屋上まで上げる工事必要 道路近くまで排水工事必要
お酒の提供不可、営業時間制限:24時迄



















