物件ID:191590
情報公開日:2026年02月14日
情報更新日:2026年02月26日
立地
-
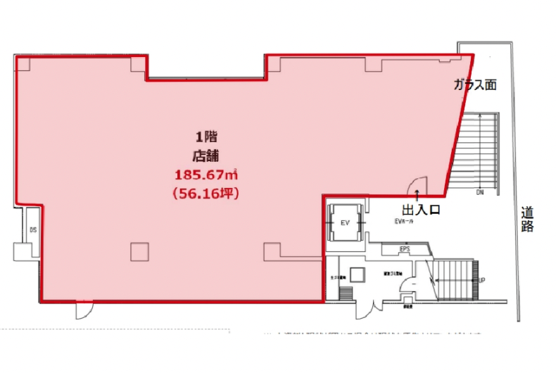
住所 東京都渋谷区神宮前五丁目50-3 建物名/所在階 アーバンテラス青山/1階 最寄駅 東京メトロ銀座線表参道駅
徒歩3分近隣駅1 東京メトロ千代田線表参道駅
徒歩3分近隣駅2 東京メトロ半蔵門線表参道駅
徒歩3分
費用/契約
-
造作価格 ー 賃料(坪単価) 3,397,680円(58,580円) 管理費/共益費(坪単価) 280,800円(4,841円) 保証金/敷金 0ヶ月 / 12ヶ月 償却 0% 礼金 0ヶ月 更新料/再契約料 ー その他費用 ー 仲介手数料 1ヶ月 その他手数料 ー 契約期間 3年 契約種別
用途
-
物件の現況 カフェ 可能用途 指定あり 坪数 58.00坪
- 備考
- 貸主指定業者による内装管理必須(借主費用負担)
用途地域商業地域/第2種住居地域
既存テナントと類似業種については要相談






















