物件ID:191553
情報公開日:2026年03月03日
情報更新日:2026年03月03日
立地
-
住所 東京都江戸川区南小岩三丁目29-8 建物名/所在階 アルモニコンフォール/2階 最寄駅 JR中央・総武線小岩駅
徒歩10分近隣駅1 ー 近隣駅2 ー
費用/契約
-
造作価格 ー 賃料(坪単価) ご相談(0円) 管理費/共益費(坪単価) ご相談(ご相談) 保証金/敷金 ー / 10ヶ月 償却 ご相談 礼金 0ヶ月 更新料/再契約料 ー その他費用 ー 仲介手数料 1ヶ月 その他手数料 ー 契約期間 ー 契約種別 普通賃貸借
用途
-
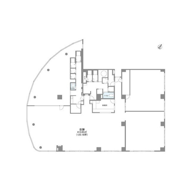
物件の現況 娯楽施設・レジャー施設 可能用途 ご相談 坪数 125.19坪
- 備考



















