物件ID:190232
情報公開日:2026年02月03日
情報更新日:2026年05月03日
立地
-
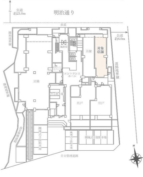
住所 東京都荒川区荒川三丁目21-2 建物名/所在階 モア·クレスト荒川公園シエール館/1階 最寄駅 JR常磐線(上野~取手)三河島駅
徒歩8分近隣駅1 京成本線新三河島駅
徒歩11分近隣駅2 東京さくらトラム(都電荒川線)荒川区役所前駅
徒歩4分
費用/契約
-
造作価格 ー 賃料(坪単価) 317,000円(15,200円) 管理費/共益費(坪単価) 33,000円(1,582円) 保証金/敷金 3ヶ月 / ー 償却 1ヶ月 礼金 0ヶ月 更新料/再契約料 1ヶ月 その他費用 ー 仲介手数料 1ヶ月 その他手数料 ー 契約期間 3年 契約種別
用途
-
物件の現況 サービス(その他) 可能用途 指定あり 坪数 20.85坪
- 備考
- 営業時間9~23時




















