物件ID:190202
情報公開日:2026年02月03日
情報更新日:2026年04月28日
立地
-
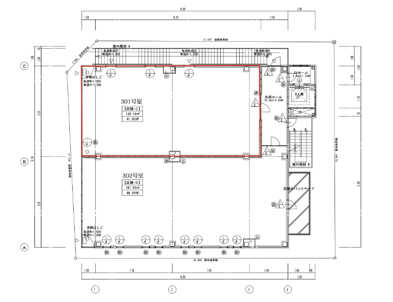
住所 埼玉県蕨市塚越一丁目6-1 建物名/所在階 秋本ビル 301/3階 最寄駅 JR京浜東北線蕨駅
徒歩3分近隣駅1 ー 近隣駅2 ー
費用/契約
-
造作価格 ー 賃料(坪単価) 551,800円(13,200円) 管理費/共益費(坪単価) ー(ー) 保証金/敷金 ー / 6ヶ月 償却 ご相談 礼金 1ヶ月 更新料/再契約料 ー その他費用 ー 仲介手数料 1ヶ月 その他手数料 ー 契約期間 ー 契約種別 普通賃貸借
用途
-
物件の現況 サービス(その他) 可能用途 指定あり 坪数 41.80坪
- 備考



















