物件ID:188370
情報公開日:2026年01月21日
情報更新日:2026年04月20日
立地
-
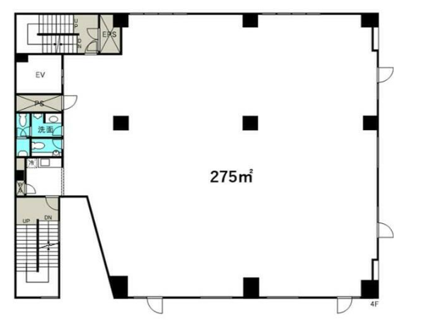
住所 東京都江戸川区西葛西六丁目10-8 建物名/所在階 第二新井ビル/4階 最寄駅 東京メトロ東西線西葛西駅
徒歩2分近隣駅1 ー 近隣駅2 ー
費用/契約
-
造作価格 ー 賃料(坪単価) 1,418,300円(17,050円) 管理費/共益費(坪単価) ー(ー) 保証金/敷金 7,735,800 / 0ヶ月 償却 20% 礼金 1ヶ月 更新料/再契約料 1ヶ月 その他費用 保証会社・火災保険加入要 仲介手数料 1ヶ月 その他手数料 ー 契約期間 3年 契約種別
用途
-
物件の現況 ー 可能用途 指定あり 坪数 83.18坪
- 備考
- 看板設置の際は別途相談 タワー式駐車場あり:28,600円/月
1フロア1テナント 24時間利用可 土日祝利用可 シャッター付き
都市ガス 動力あり 火災警報器 24時間セキュリティ EV



















