物件ID:188079
情報公開日:2026年01月19日
情報更新日:2026年01月19日
立地
-
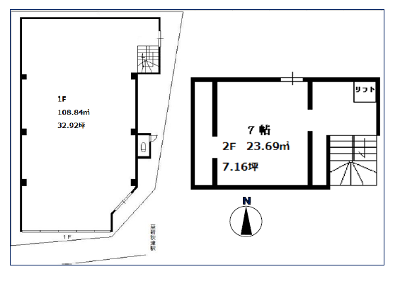
住所 東京都東村山市秋津町五丁目36-39 建物名/所在階 サンメイツ 1-2F/1~2階 最寄駅 JR武蔵野線新秋津駅
徒歩2分近隣駅1 ー 近隣駅2 ー
費用/契約
-
造作価格 ー 賃料(坪単価) 275,000円(6,859円) 管理費/共益費(坪単価) ー(ー) 保証金/敷金 ー / 3ヶ月 償却 ご相談 礼金 0ヶ月 更新料/再契約料 1ヶ月 その他費用 ー 仲介手数料 1ヶ月 その他手数料 ー 契約期間 ー 契約種別
用途
-
物件の現況 ラーメン 可能用途 指定あり 坪数 40.09坪
- 備考



















