物件ID:187622
情報公開日:2026年01月15日
情報更新日:2026年04月13日
立地
-
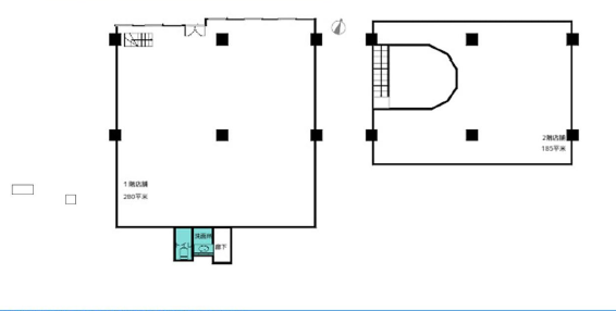
住所 千葉県松戸市小金原六丁目5-8 建物名/所在階 小金原6丁目店舗 一棟/1~2階 最寄駅 JR常磐線(上野~取手)北小金駅
徒歩30分近隣駅1 ー 近隣駅2 ー
費用/契約
-
造作価格 ー 賃料(坪単価) 690,000円(4,905円) 管理費/共益費(坪単価) ー(ー) 保証金/敷金 ー / 5ヶ月 償却 ご相談 礼金 1ヶ月 更新料/再契約料 1ヶ月 その他費用 ー 仲介手数料 1ヶ月 その他手数料 ー 契約期間 3年 契約種別
用途
-
物件の現況 ー 可能用途 指定あり 坪数 140.66坪
- 備考



















