物件ID:156245
情報公開日:2025年04月18日
情報更新日:2026年04月21日
立地
-
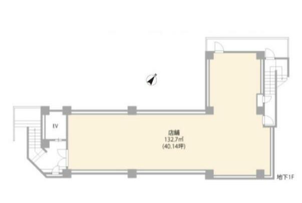
住所 千葉県松戸市本町22-5 建物名/所在階 松戸THビル/地下1階 最寄駅 JR常磐線(上野~取手)松戸駅
徒歩2分近隣駅1 ー 近隣駅2 ー
費用/契約
-
造作価格 ー 賃料(坪単価) 783,882円(19,799円) 管理費/共益費(坪単価) 103,400円(2,611円) 保証金/敷金 6ヶ月 / ー 償却 20% 礼金 1ヶ月 更新料/再契約料 1ヶ月 その他費用 指定保証会社・火災保険加入要 セコム:16500円/月 仲介手数料 1ヶ月 その他手数料 ー 契約期間 3年 契約種別
用途
-
物件の現況 ー 可能用途 指定あり 坪数 39.59坪
- 備考
- 土日・祝日利用可 耐震構造(新耐震基準) 築後未入居
オートロック 24時間セキュリティー EV 24時間換気システム
空調機・換気口・排煙設備・厨房防水・排水設備あり





















