物件ID:173410
情報公開日:2025年09月14日
情報更新日:2026年04月02日
立地
-
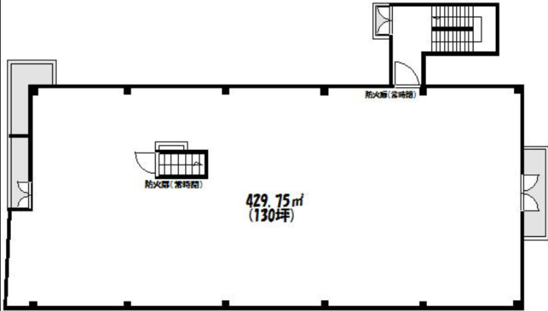
住所 千葉県松戸市小金53 建物名/所在階 イタクラビル/3階 最寄駅 JR常磐線(上野~取手)北小金駅
徒歩3分近隣駅1 ー 近隣駅2 ー
費用/契約
-
造作価格 ー 賃料(坪単価) 434,500円(3,342円) 管理費/共益費(坪単価) 11,000円(84円) 保証金/敷金 ー / 3ヶ月 償却 0% 礼金 1ヶ月 更新料/再契約料 1ヶ月 その他費用 町会費 500円 仲介手数料 1ヶ月 その他手数料 ー 契約期間 3年 契約種別
用途
-
物件の現況 ー 可能用途 ご相談 坪数 130.00坪
- 備考






















