物件ID:187217
情報公開日:2026年03月27日
情報更新日:2026年03月31日
立地
-
住所 東京都港区西麻布四丁目11-28 建物名/所在階 麻布エンパイアマンション 103号室/1階 最寄駅 東京メトロ日比谷線広尾駅
徒歩8分近隣駅1 ー 近隣駅2 ー
費用/契約
-
造作価格 ー 賃料(坪単価) 583,000円(39,655円) 管理費/共益費(坪単価) 16,500円(1,122円) 保証金/敷金 10ヶ月 / ー 償却 2ヶ月 礼金 1ヶ月 更新料/再契約料 1ヶ月 その他費用 保証会社・テナント総合保険加入要 仲介手数料 1ヶ月 その他手数料 ー 契約期間 3年 契約種別 普通賃貸借
用途
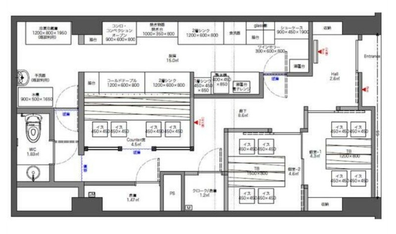
-
物件の現況 寿司・和食 可能用途 指定あり 坪数 14.70坪
- 備考
- 換気口・排煙設備・グリストラップ・厨房防水・排水設備あり
深夜営業可能 看板取付スペースあり 外装改装相談
適格請求書発行可 解約時スケルトン返し 引渡状態相談可



























