物件ID:186349
情報公開日:2026年01月06日
情報更新日:2026年01月06日
立地
-
住所 東京都江東区亀戸二丁目23-11 建物名/所在階 KK-TOWER/4階 最寄駅 JR中央・総武線亀戸駅
徒歩3分近隣駅1 東京メトロ半蔵門線錦糸町駅
徒歩13分近隣駅2 ー
費用/契約
-
造作価格 ー 賃料(坪単価) ご相談(0円) 管理費/共益費(坪単価) 66,000円(1,165円) 保証金/敷金 10ヶ月 / ー 償却 0% 礼金 0ヶ月 更新料/再契約料 0ヶ月 その他費用 ー 仲介手数料 1ヶ月 その他手数料 ー 契約期間 ー 契約種別
用途
-
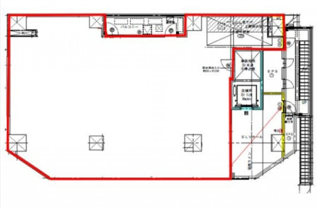
物件の現況 ー 可能用途 指定あり 坪数 56.62坪
- 備考



















