物件ID:185652
情報公開日:2026年03月25日
情報更新日:2026年03月25日
立地
-
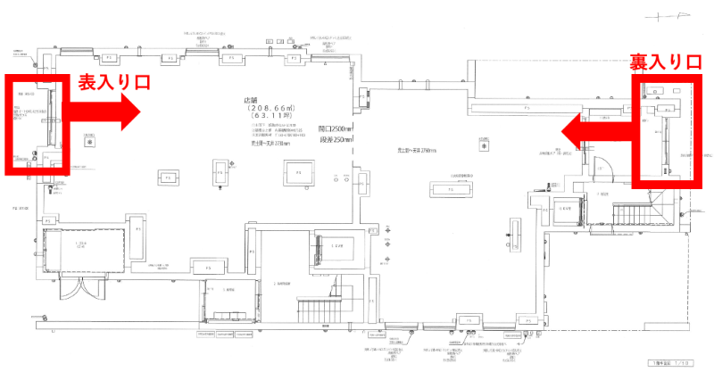
住所 東京都八王子市横山町7-3 建物名/所在階 グランコスモ八王子/1階 最寄駅 JR中央本線(東京~塩尻)八王子駅
徒歩5分近隣駅1 ー 近隣駅2 ー
費用/契約
-
造作価格 ー 賃料(坪単価) 902,000円(14,290円) 管理費/共益費(坪単価) ー(ー) 保証金/敷金 6ヶ月 / ー 償却 ご相談 礼金 1ヶ月 更新料/再契約料 1ヶ月 その他費用 ー 仲介手数料 1ヶ月 その他手数料 ー 契約期間 5年 契約種別 普通賃貸借
用途
-
物件の現況 ー 可能用途 何業も可 坪数 63.12坪
- 備考



























