物件ID:185640
情報公開日:2025年12月23日
情報更新日:2025年12月23日
立地
-
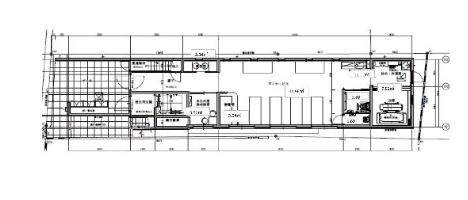
住所 東京都荒川区東尾久三丁目19-6 建物名/所在階 ナースプラネットビル 1F/1階 最寄駅 日暮里・舎人ライナー熊野前駅
徒歩2分近隣駅1 ー 近隣駅2 ー
費用/契約
-
造作価格 ー 賃料(坪単価) 550,000円(17,948円) 管理費/共益費(坪単価) ー(ー) 保証金/敷金 3ヶ月 / ー 償却 ご相談 礼金 1ヶ月 更新料/再契約料 ー その他費用 ー 仲介手数料 1ヶ月 その他手数料 ー 契約期間 ー 契約種別
用途
-
物件の現況 サービス(その他) 可能用途 指定あり 坪数 30.64坪
- 備考




















