物件ID:185417
情報公開日:2025年12月19日
情報更新日:2026年03月13日
立地
-
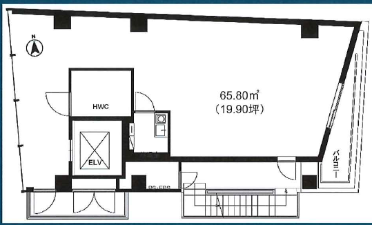
住所 東京都港区北青山二丁目7-27 建物名/所在階 P's GAIENMAE 4階/4階 最寄駅 東京メトロ銀座線外苑前駅
徒歩2分近隣駅1 ー 近隣駅2 ー
費用/契約
-
造作価格 ー 賃料(坪単価) 634,810円(31,892円) 管理費/共益費(坪単価) 59,700円(3,299円) 保証金/敷金 10ヶ月 / ー 償却 1ヶ月 礼金 ご相談 更新料/再契約料 ー その他費用 ー 仲介手数料 1ヶ月 その他手数料 ー 契約期間 3年 契約種別 普通賃貸借
用途
-
物件の現況 サービス(その他) 可能用途 指定あり 坪数 19.90坪
- 備考
- 飲食不可 民泊不可 法律系事務所 不動産業不可
電気使用可能容量要確認





















