物件ID:181466
情報公開日:2025年11月19日
情報更新日:2026年02月18日
立地
-
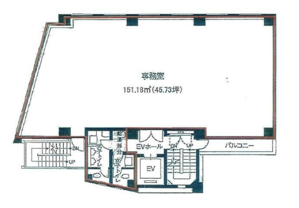
住所 東京都港区赤坂三丁目9-18 建物名/所在階 KITAYAMAビル/2階 最寄駅 東京メトロ銀座線赤坂見附駅
徒歩3分近隣駅1 ー 近隣駅2 ー
費用/契約
-
造作価格 ー 賃料(坪単価) 1,106,666円(24,200円) 管理費/共益費(坪単価) 150,909円(3,300円) 保証金/敷金 6ヶ月 / ー 償却 ご相談 礼金 1ヶ月 更新料/再契約料 0ヶ月 その他費用 保証会社・火災保険加入要 仲介手数料 1ヶ月 その他手数料 ー 契約期間 2年 契約種別
用途
-
物件の現況 サービス(その他) 可能用途 指定あり 坪数 45.73坪
- 備考



















