物件ID:180899
情報公開日:2025年11月14日
情報更新日:2026年02月10日
立地
-
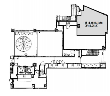
住所 東京都千代田区神田須田町一丁目14-1 建物名/所在階 1階 最寄駅 東京メトロ丸ノ内線淡路町駅
徒歩3分近隣駅1 ー 近隣駅2 ー
費用/契約
-
造作価格 ー 賃料(坪単価) 552,750円(33,000円) 管理費/共益費(坪単価) ー(ー) 保証金/敷金 ご相談 / 10ヶ月 償却 0% 礼金 0ヶ月 更新料/再契約料 1ヶ月 その他費用 ー 仲介手数料 1ヶ月 その他手数料 ー 契約期間 ー 契約種別
用途
-
物件の現況 ー 可能用途 指定あり 坪数 16.75坪
- 備考



















