物件ID:180525
情報公開日:2025年11月12日
情報更新日:2026年04月28日
立地
-
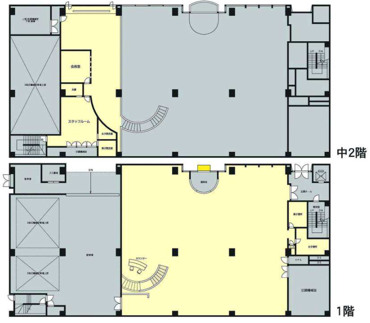
住所 埼玉県さいたま市中央区上落合二丁目4-2 建物名/所在階 1階 最寄駅 JR埼京線北与野駅
徒歩4分近隣駅1 JR京浜東北線さいたま新都心駅
徒歩10分近隣駅2 JR埼京線大宮駅
徒歩25分
費用/契約
-
造作価格 ー 賃料(坪単価) 2,574,504円(10,421円) 管理費/共益費(坪単価) 725,496円(2,936円) 保証金/敷金 0ヶ月 / 12ヶ月 償却 0% 礼金 0ヶ月 更新料/再契約料 ー その他費用 ー 仲介手数料 1ヶ月 その他手数料 ー 契約期間 10年 契約種別
用途
-
物件の現況 ー 可能用途 指定あり 坪数 247.04坪
- 備考




















