物件ID:178687
情報公開日:2025年10月29日
情報更新日:2026年04月21日
立地
-
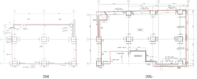
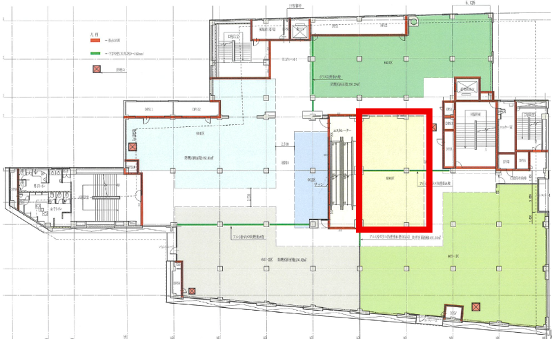
住所 東京都立川市曙町二丁目11-2 建物名/所在階 2階 最寄駅 JR中央本線(東京~塩尻)立川駅
徒歩2分近隣駅1 ー 近隣駅2 ー
費用/契約
-
造作価格 ー 賃料(坪単価) ご相談(0円) 管理費/共益費(坪単価) ご相談(ご相談) 保証金/敷金 ご相談 / ご相談 償却 ご相談 礼金 ご相談 更新料/再契約料 ー その他費用 その他費用あり 仲介手数料 1ヶ月 その他手数料 ー 契約期間 ー 契約種別 普通賃貸借
用途
-
物件の現況 ー 可能用途 指定あり 坪数 90.10坪
- 備考
- 保証会社加入必須 保険加入必須



















