物件ID:178120
情報公開日:2025年10月24日
情報更新日:2026年03月28日
立地
-
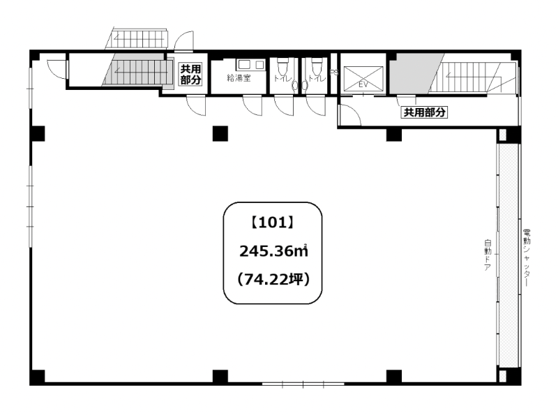
住所 埼玉県越谷市千間台東一丁目7-24 建物名/所在階 エムケービル千間台【101】/1階 最寄駅 東武伊勢崎線せんげん台駅
徒歩3分近隣駅1 ー 近隣駅2 ー
費用/契約
-
造作価格 ー 賃料(坪単価) 816,420円(11,000円) 管理費/共益費(坪単価) 5,500円(74円) 保証金/敷金 0ヶ月 / 6ヶ月 償却 1ヶ月 礼金 1ヶ月 更新料/再契約料 1ヶ月 その他費用 ー 仲介手数料 1ヶ月 その他手数料 ー 契約期間 3年 契約種別
用途
-
物件の現況 サービス(その他) 可能用途 何業も可 坪数 74.22坪
- 備考
- 駐 車 場 9 台分有り(13,200 円[税込]/台)
トイレ 2 基・ミニキッチン(温水器付き)・照明器具。空調あり
2025 年 10 月事務所仕様にリフォーム済み






















