物件ID:178077
情報公開日:2025年10月23日
情報更新日:2026年04月14日
立地
-
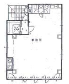
住所 神奈川県相模原市南区相模大野三丁目16-7 建物名/所在階 まもってあげたいビル/3階 最寄駅 小田急線相模大野駅
徒歩2分近隣駅1 ー 近隣駅2 ー
費用/契約
-
造作価格 ー 賃料(坪単価) 330,000円(11,797円) 管理費/共益費(坪単価) 39,930円(1,427円) 保証金/敷金 6ヶ月 / ー 償却 20% 礼金 1ヶ月 更新料/再契約料 1ヶ月 その他費用 保険加入要 セキュリティシステム利用料別途要 仲介手数料 1ヶ月 その他手数料 ー 契約期間 3年 契約種別
用途
-
物件の現況 サービス(その他) 可能用途 指定あり 坪数 27.97坪
- 備考
- 専有部分に男女別トイレあり 1フロア1テナント エレベーター
看板使用料別途相談
新規内装リフォーム済み ミニキッチン付き



















