物件ID:177308
情報公開日:2025年10月17日
情報更新日:2026年04月10日
立地
-
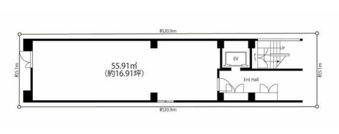
住所 東京都北区赤羽二丁目7-1 建物名/所在階 ロールブランビル/1階 最寄駅 JR京浜東北線赤羽駅
徒歩7分近隣駅1 ー 近隣駅2 ー
費用/契約
-
造作価格 ー 賃料(坪単価) 385,000円(22,763円) 管理費/共益費(坪単価) 11,000円(650円) 保証金/敷金 ー / 3ヶ月 償却 ご相談 礼金 1ヶ月 更新料/再契約料 1ヶ月 その他費用 賃貸保証・宅建ファミリー保険加入要 商店会費12800円/月 仲介手数料 1ヶ月 その他手数料 ー 契約期間 5年 契約種別 普通賃貸借
用途
-
物件の現況 ー 可能用途 指定あり 坪数 16.91坪
- 備考
- 商店会イベント時(年2回)4000円/年 深夜営業可 再契約相談可
事務所利用時は契約は定期借家契約3年 1フロア1テナント




















