物件ID:176493
情報公開日:2025年10月09日
情報更新日:2026年04月06日
立地
-
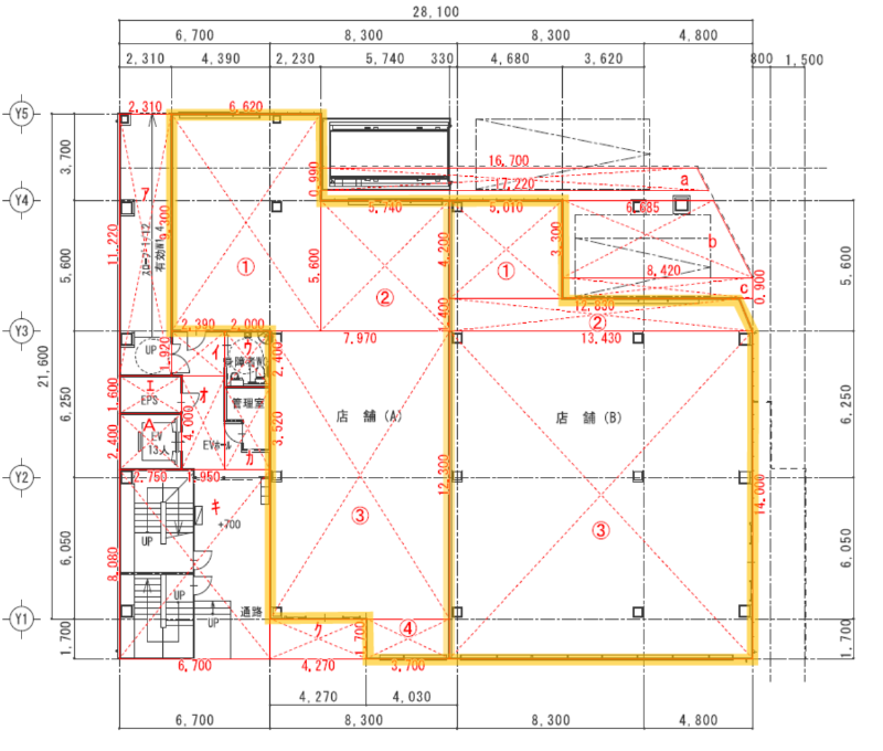
住所 東京都町田市森野一丁目25-21 建物名/所在階 町田トーセイビル/1階 最寄駅 小田急線町田駅
徒歩3分近隣駅1 JR横浜線町田駅
徒歩5分近隣駅2 ー
費用/契約
-
造作価格 ー 賃料(坪単価) 1,581,360円(26,398円) 管理費/共益費(坪単価) ご相談(ご相談) 保証金/敷金 0ヶ月 / 10ヶ月 償却 0% 礼金 0ヶ月 更新料/再契約料 0ヶ月 その他費用 要相談 仲介手数料 1ヶ月 その他手数料 ー 契約期間 2年 契約種別
用途
-
物件の現況 ー 可能用途 ご相談 坪数 59.90坪
- 備考
























