物件ID:176288
情報公開日:2025年10月07日
情報更新日:2026年03月24日
立地
-
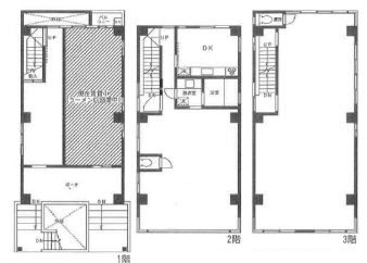
住所 東京都世田谷区梅丘一丁目22-12 建物名/所在階 ⼩泉ビル/1~3階 最寄駅 小田急線梅ヶ丘駅
徒歩1分近隣駅1 小田急線豪徳寺駅
徒歩10分近隣駅2 東急世田谷線山下駅
徒歩10分
費用/契約
-
造作価格 ー 賃料(坪単価) 770,000円(14,758円) 管理費/共益費(坪単価) ー(ー) 保証金/敷金 10ヶ月 / ー 償却 2ヶ月 礼金 2ヶ月 更新料/再契約料 2ヶ月 その他費用 指定保証会社・加入要 仲介手数料 1ヶ月 その他手数料 ー 契約期間 5年 契約種別 普通賃貸借
用途
-
物件の現況 サービス(その他) 可能用途 何業も可 坪数 52.17坪
- 備考
- 再契約相談型 検査済証なし
屋上に約25㎡の専用倉庫あり トイレ2ヶ所 収納スペース 都市ガス
土日・祝日利用可



















