物件ID:175724
情報公開日:2026年03月29日
情報更新日:2026年03月29日
立地
-
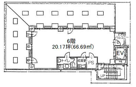
住所 東京都千代田区九段南三丁目5-7 建物名/所在階 エミナンス九段 6階/6階 最寄駅 都営新宿線市ヶ谷駅
徒歩5分近隣駅1 東京メトロ半蔵門線半蔵門駅
徒歩10分近隣駅2 ー
費用/契約
-
造作価格 ー 賃料(坪単価) 332,805円(16,500円) 管理費/共益費(坪単価) ー(ー) 保証金/敷金 5ヶ月 / ー 償却 2ヶ月 礼金 0ヶ月 更新料/再契約料 ー その他費用 ー 仲介手数料 1ヶ月 その他手数料 ー 契約期間 2年 契約種別
用途
-
物件の現況 サービス(その他) 可能用途 指定あり 坪数 20.17坪
- 備考



















