物件ID:175432
情報公開日:2025年10月01日
情報更新日:2026年03月24日
立地
-
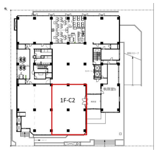
住所 埼玉県川越市大字鯨井新田6-1 建物名/所在階 第3今泉ビル C2区画/1階 最寄駅 東武東上線鶴ヶ島駅
徒歩2分近隣駅1 ー 近隣駅2 ー
費用/契約
-
造作価格 ご相談 賃料(坪単価) 893,244円(13,198円) 管理費/共益費(坪単価) ー(ー) 保証金/敷金 ー / 6ヶ月 償却 ご相談 礼金 0ヶ月 更新料/再契約料 1ヶ月 その他費用 ー 仲介手数料 1ヶ月 その他手数料 ー 契約期間 3年 契約種別
用途
-
物件の現況 サービス(その他) 可能用途 ご相談 坪数 67.68坪
- 備考
- エレベーター2基以上



















