物件ID:172350
情報公開日:2025年09月05日
情報更新日:2026年02月19日
立地
-
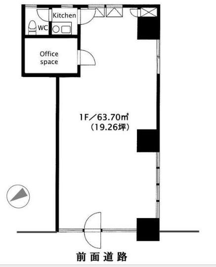
住所 東京都港区南青山六丁目7-1 建物名/所在階 タウンハウス南⻘⼭/1階 最寄駅 東京メトロ銀座線表参道駅
徒歩8分近隣駅1 ー 近隣駅2 ー
費用/契約
-
造作価格 ー 賃料(坪単価) 741,510円(38,481円) 管理費/共益費(坪単価) ー(ー) 保証金/敷金 ー / 8ヶ月 償却 1ヶ月 礼金 1ヶ月 更新料/再契約料 1ヶ月 その他費用 保証会社・火災保険加入要 仲介手数料 1ヶ月 その他手数料 ー 契約期間 2年 契約種別
用途
-
物件の現況 サービス(その他) 可能用途 指定あり 坪数 19.27坪
- 備考
- 1フロア1テナント 前面ガラス張り 適格請求書発行可
天井・壁貼替済み 残置物:エアコン、キッチン、トイレ、事務室





















