物件ID:171860
情報公開日:2025年09月02日
情報更新日:2026年03月24日
立地
-
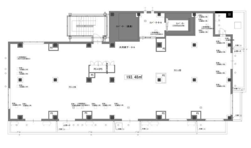
住所 埼玉県新座市野火止五丁目3-62 建物名/所在階 ジャルダン デ グリシーヌ/2階 最寄駅 JR武蔵野線新座駅
徒歩1分近隣駅1 ー 近隣駅2 ー
費用/契約
-
造作価格 ー 賃料(坪単価) 825,000円(14,099円) 管理費/共益費(坪単価) 44,000円(751円) 保証金/敷金 0ヶ月 / 3ヶ月 償却 ご相談 礼金 1ヶ月 更新料/再契約料 1ヶ月 その他費用 ー 仲介手数料 1ヶ月 その他手数料 ー 契約期間 3年 契約種別
用途
-
物件の現況 ー 可能用途 指定あり 坪数 58.51坪
- 備考
- 駐車場:14,300円/月(2台まで相談)



















