物件ID:171272
情報公開日:2025年08月29日
情報更新日:2026年04月08日
立地
-
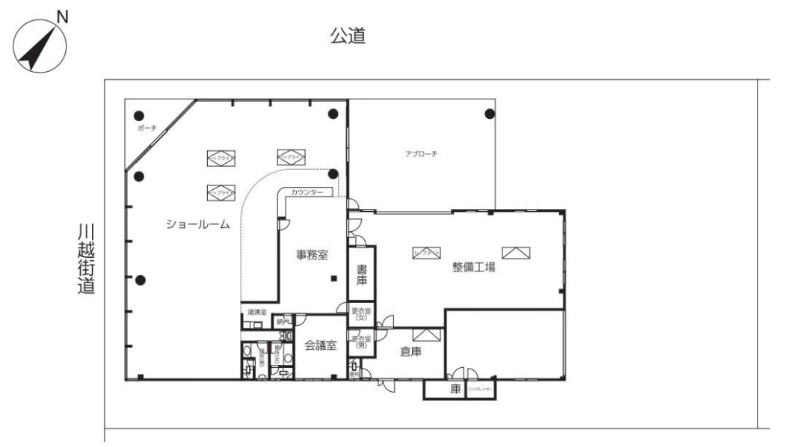
住所 埼玉県入間郡三芳町大字藤久保696-1 建物名/所在階 1階 最寄駅 東武東上線鶴瀬駅
徒歩24分近隣駅1 ー 近隣駅2 ー
費用/契約
-
造作価格 ー 賃料(坪単価) 1,980,000円(13,031円) 管理費/共益費(坪単価) ー(ー) 保証金/敷金 ー / 8ヶ月 償却 0% 礼金 1ヶ月 更新料/再契約料 1ヶ月 その他費用 ー 仲介手数料 1ヶ月 その他手数料 ー 契約期間 3年 契約種別
用途
-
物件の現況 サービス(その他) 可能用途 指定あり 坪数 151.94坪
- 備考
- 保証会社加入必須 保険加入必須



















