物件ID:164436
情報公開日:2025年06月29日
情報更新日:2026年04月02日
立地
-
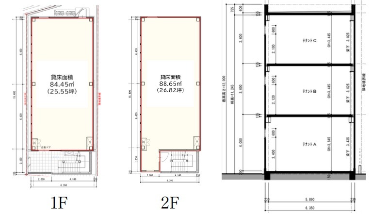
住所 神奈川県川崎市中原区新丸子東三丁目447-8 建物名/所在階 esta VIVO武蔵⼩杉/1~2階 最寄駅 東急東横線武蔵小杉駅
徒歩3分近隣駅1 ー 近隣駅2 ー
費用/契約
-
造作価格 ー 賃料(坪単価) 940,500円(36,815円) 管理費/共益費(坪単価) ー(ー) 保証金/敷金 ー / 6ヶ月 償却 0% 礼金 2ヶ月 更新料/再契約料 1ヶ月 その他費用 看板使用料:55,000円(税込) 仲介手数料 1ヶ月 その他手数料 ー 契約期間 2年 契約種別
用途
-
物件の現況 ー 可能用途 何業も可 坪数 25.55坪
- 備考
- ☆人気の武蔵小杉駅近、築浅物件登場!
☆現状事務所仕様、スケルトン渡し可
☆天カセ各フロア2台付!
























