物件ID:161423
情報公開日:2025年06月04日
情報更新日:2026年02月27日
立地
-
住所 東京都文京区本駒込二丁目29-24 建物名/所在階 パシフィックスクエア千石 8F/8階 最寄駅 都営三田線千石駅
徒歩2分近隣駅1 JR山手線巣鴨駅
徒歩9分近隣駅2 東京メトロ南北線駒込駅
徒歩15分
費用/契約
-
造作価格 ー 賃料(坪単価) 1,385,175円(27,502円) 管理費/共益費(坪単価) ー(ー) 保証金/敷金 6ヶ月 / ー 償却 0% 礼金 0ヶ月 更新料/再契約料 ー その他費用 ー 仲介手数料 1ヶ月 その他手数料 ー 契約期間 2年 契約種別
用途
-
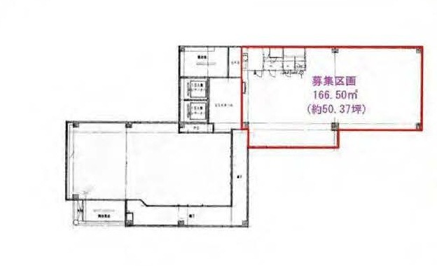
物件の現況 サービス(その他) 可能用途 指定あり 坪数 50.37坪
- 備考




















