物件ID:157605
情報公開日:2025年05月01日
情報更新日:2026年01月19日
立地
-
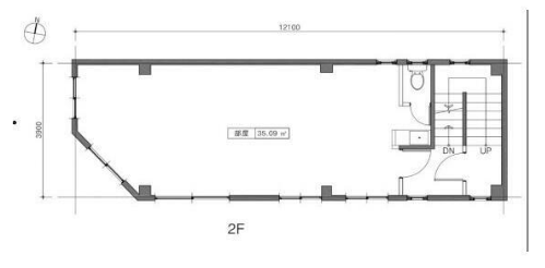
住所 東京都千代田区麹町三丁目1-8 建物名/所在階 麹町駅前商業ビル/2階 最寄駅 東京メトロ有楽町線麹町駅
徒歩2分近隣駅1 東京メトロ半蔵門線半蔵門駅
徒歩2分近隣駅2 ー
費用/契約
-
造作価格 ー 賃料(坪単価) 220,000円(20,725円) 管理費/共益費(坪単価) ー(ー) 保証金/敷金 ー / 4ヶ月 償却 ご相談 礼金 220,000 更新料/再契約料 0ヶ月 その他費用 ー 仲介手数料 1ヶ月 その他手数料 ー 契約期間 2年 契約種別 普通賃貸借
用途
-
物件の現況 サービス(その他) 可能用途 ご相談 坪数 10.61坪
- 備考
- 現況渡し・現況返し


























