物件ID:166442
情報公開日:2025年07月15日
情報更新日:2025年10月08日
立地
-
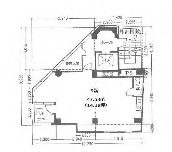
住所 東京都千代田区九段北一丁目4-5 建物名/所在階 東英九段ビル 9F/9階 最寄駅 東京メトロ東西線九段下駅
徒歩2分近隣駅1 都営新宿線九段下駅
徒歩2分近隣駅2 ー
費用/契約
-
造作価格 ー 賃料(坪単価) 276,800円(19,251円) 管理費/共益費(坪単価) ー(ー) 保証金/敷金 ー / 8ヶ月 償却 1ヶ月 礼金 0ヶ月 更新料/再契約料 ー その他費用 ー 仲介手数料 1ヶ月 その他手数料 ー 契約期間 2年 契約種別
用途
-
物件の現況 サービス(その他) 可能用途 指定あり 坪数 14.38坪
- 備考



















