物件ID:146854
情報公開日:2026年01月18日
情報更新日:2026年04月16日
立地
-
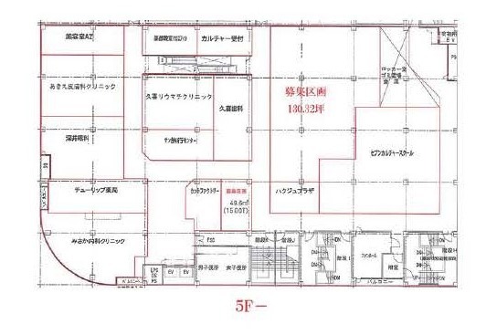
住所 埼玉県久喜市久喜中央四丁目9-11 建物名/所在階 第⼀三⾼ビル 5階130区画/5階 最寄駅 宇都宮線久喜駅
徒歩9分近隣駅1 ー 近隣駅2 ー
費用/契約
-
造作価格 ー 賃料(坪単価) 2,293,600円(17,674円) 管理費/共益費(坪単価) ー(ー) 保証金/敷金 10ヶ月 / ー 償却 0% 礼金 0ヶ月 更新料/再契約料 ー その他費用 雑費5,000円/⽉ 仲介手数料 1ヶ月 その他手数料 ー 契約期間 6年 契約種別
用途
-
物件の現況 サービス(その他) 可能用途 指定あり 坪数 129.77坪
- 備考



















