物件ID:137425
情報公開日:2025年01月28日
情報更新日:2026年04月20日
立地
-
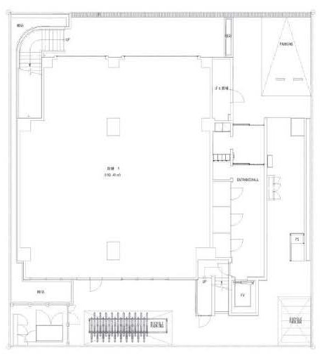
住所 千葉県流山市前平井125-1 建物名/所在階 B CITY ART RESIDENSE CENTRAL P/1階 最寄駅 つくばエクスプレス流山セントラルパーク駅
徒歩1分近隣駅1 ー 近隣駅2 ー
費用/契約
-
造作価格 ー 賃料(坪単価) 990,000円(17,187円) 管理費/共益費(坪単価) ー(ー) 保証金/敷金 0ヶ月 / 6ヶ月 償却 ご相談 礼金 1ヶ月 更新料/再契約料 1ヶ月 その他費用 ー 仲介手数料 1ヶ月 その他手数料 ー 契約期間 5年 契約種別 普通賃貸借
用途
-
物件の現況 サービス(その他) 可能用途 何業も可 坪数 57.60坪
- 備考



















