物件ID:193118
情報公開日:2026年02月27日
情報更新日:2026年04月13日
立地
-
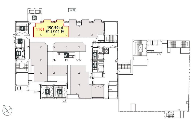
住所 千葉県松戸市松戸1307 建物名/所在階 キテミテマツド 11F-1101/11階 最寄駅 新京成線松戸駅
徒歩4分近隣駅1 ー 近隣駅2 ー
費用/契約
-
造作価格 ー 賃料(坪単価) 824,395円(14,299円) 管理費/共益費(坪単価) ー(ー) 保証金/敷金 ー / 8ヶ月 償却 0% 礼金 0ヶ月 更新料/再契約料 ー その他費用 ー 仲介手数料 1ヶ月 その他手数料 ー 契約期間 ー 契約種別 普通賃貸借
用途
-
物件の現況 ー 可能用途 指定あり 坪数 57.65坪
- 備考
- 契約期間:応相談(最長2034年4月30日迄)
営業時間:10時-20時
月極駐車場:立体または地下でご相談可能1台25000円/月




















