物件ID:158590
情報公開日:2025年05月12日
情報更新日:2026年04月15日
立地
-
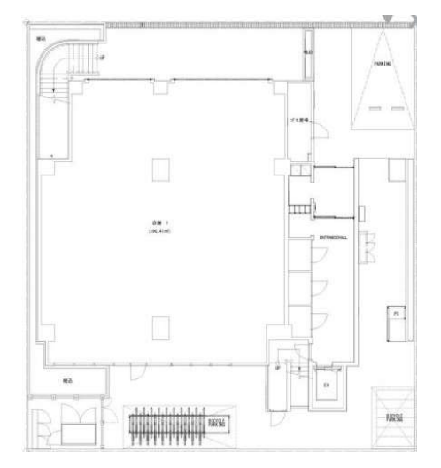
住所 千葉県流山市前平井125-1 建物名/所在階 Bシティアートレジデンスセントラルパーク/1階 最寄駅 つくばエクスプレス流山セントラルパーク駅
徒歩1分近隣駅1 流鉄流山線流山駅
徒歩15分近隣駅2 流鉄流山線平和台駅
徒歩19分
費用/契約
-
造作価格 ご相談 賃料(坪単価) 990,000円(17,190円) 管理費/共益費(坪単価) ー(ー) 保証金/敷金 ー / 6ヶ月 償却 ご相談 礼金 1ヶ月 更新料/再契約料 ー その他費用 保証会社・保険加入要 仲介手数料 1ヶ月 その他手数料 ー 契約期間 5年 契約種別
用途
-
物件の現況 カフェ 可能用途 何業も可 坪数 57.59坪
- 備考
- 1フロア1テナント 土日祝利用可 専有部分にトイレあり 給湯
都市ガス エアコン



















