物件ID:105491
情報公開日:2023年11月21日
情報更新日:2026年04月15日
立地
-
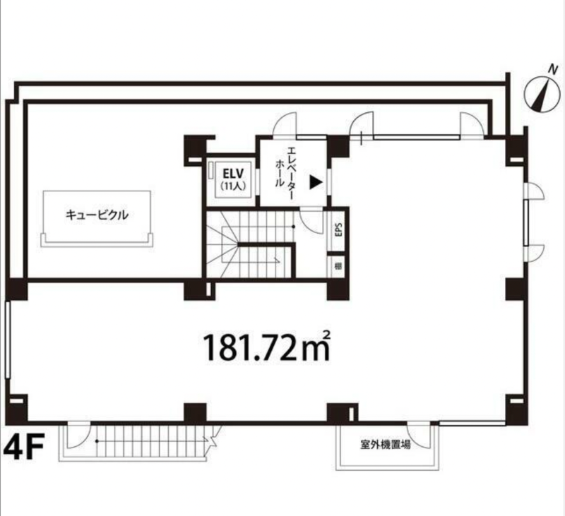
住所 埼玉県さいたま市浦和区元町二丁目18-13 建物名/所在階 浦和元町メディカルビル 401/4階 最寄駅 JR京浜東北線北浦和駅
徒歩6分近隣駅1 ー 近隣駅2 ー
費用/契約
-
造作価格 ー 賃料(坪単価) 786,500円(14,307円) 管理費/共益費(坪単価) 79,200円(1,440円) 保証金/敷金 0ヶ月 / 6ヶ月 償却 1ヶ月 礼金 2ヶ月 更新料/再契約料 ー その他費用 ー 仲介手数料 1ヶ月 その他手数料 ー 契約期間 3年 契約種別
用途
-
物件の現況 ー 可能用途 指定あり 坪数 54.97坪
- 備考
- 駐車場空きあり16,500円/月





















