物件ID:200729
情報公開日:2026年04月25日
情報更新日:2026年04月25日
立地
-
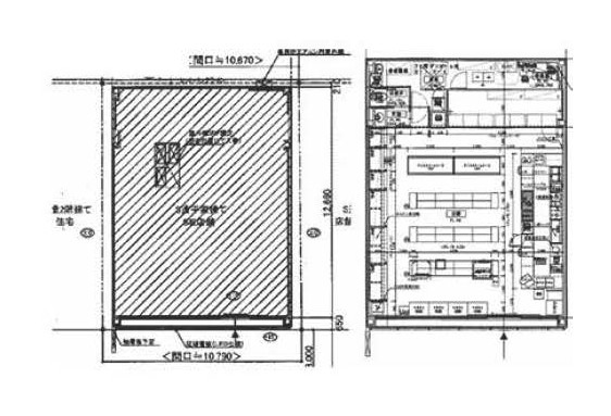
住所 神奈川県横浜市磯子区西町3-17 建物名/所在階 横浜磯子西町貸テナント/1階 最寄駅 JR根岸線根岸駅
徒歩5分近隣駅1 ー 近隣駅2 ー
費用/契約
-
造作価格 ー 賃料(坪単価) 550,000円(15,171円) 管理費/共益費(坪単価) ー(ー) 保証金/敷金 0ヶ月 / 6ヶ月 償却 1ヶ月 礼金 2ヶ月 更新料/再契約料 ご相談 その他費用 ー 仲介手数料 1ヶ月 その他手数料 ー 契約期間 10年 契約種別 普通賃貸借
用途
-
物件の現況 サービス(その他) 可能用途 指定あり 坪数 36.25坪
- 備考



















