物件ID:200640
情報公開日:2026年04月24日
情報更新日:2026年04月24日
立地
-
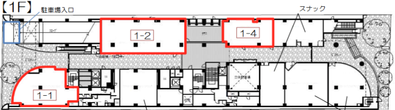
住所 埼玉県さいたま市浦和区高砂二丁目1-19 建物名/所在階 ホテルグローバルビュー浦和 1-2区画/1階 最寄駅 JR京浜東北線浦和駅
徒歩5分近隣駅1 ー 近隣駅2 ー
費用/契約
-
造作価格 ー 賃料(坪単価) 1,056,528円(17,600円) 管理費/共益費(坪単価) ー(ー) 保証金/敷金 0ヶ月 / 6ヶ月 償却 0% 礼金 1ヶ月 更新料/再契約料 1ヶ月 その他費用 ー 仲介手数料 1ヶ月 その他手数料 ー 契約期間 3年 契約種別 普通賃貸借
用途
-
物件の現況 ー 可能用途 ご相談 坪数 60.03坪
- 備考
- 業種相談可、スケルトン引渡
敷地内機械式駐車場空き有、給排水・ガス引込み有、個別空調使用可
フリーレント要相談




















