物件ID:200614
情報公開日:2026年04月24日
情報更新日:2026年04月24日
立地
-
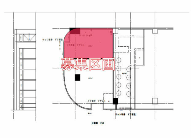
住所 東京都杉並区上荻一丁目18-3 建物名/所在階 1階 最寄駅 JR中央・総武線荻窪駅
徒歩3分近隣駅1 ー 近隣駅2 ー
費用/契約
-
造作価格 ー 賃料(坪単価) 198,000円(22,554円) 管理費/共益費(坪単価) 16,950円(2,123円) 保証金/敷金 1,200,000 / ー 償却 2ヶ月 礼金 1ヶ月 更新料/再契約料 2ヶ月 その他費用 その他費用有 仲介手数料 1ヶ月 その他手数料 ー 契約期間 2年 契約種別
用途
-
物件の現況 サービス(その他) 可能用途 ご相談 坪数 8.78坪
- 備考



















