物件ID:200282
情報公開日:2026年04月22日
情報更新日:2026年04月22日
立地
-
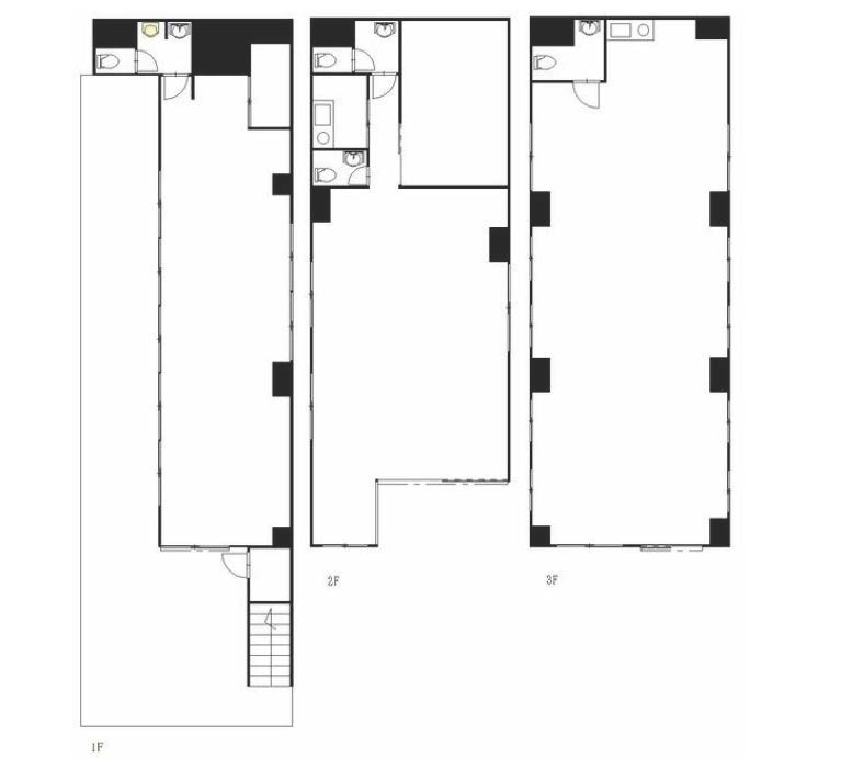
住所 神奈川県相模原市中央区清新四丁目2-8 建物名/所在階 仮)相模原市中央区清新ビル/1~3階 最寄駅 JR相模線南橋本駅
徒歩15分近隣駅1 ー 近隣駅2 ー
費用/契約
-
造作価格 ー 賃料(坪単価) 990,000円(10,748円) 管理費/共益費(坪単価) ー(ー) 保証金/敷金 0ヶ月 / 6ヶ月 償却 1ヶ月 礼金 1ヶ月 更新料/再契約料 1ヶ月 その他費用 ー 仲介手数料 1ヶ月 その他手数料 ー 契約期間 2年 契約種別
用途
-
物件の現況 サービス(その他) 可能用途 指定あり 坪数 92.10坪
- 備考



















