物件ID:198998
情報公開日:2026年04月13日
情報更新日:2026年04月13日
立地
-
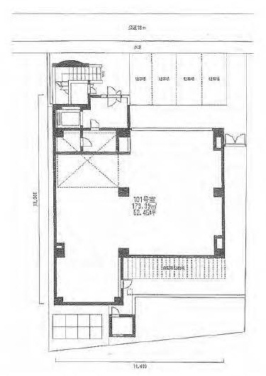
住所 神奈川県藤沢市湘南台一丁目7-4 建物名/所在階 綴ビル 1F/1階 最寄駅 ブルーライン湘南台駅
徒歩2分近隣駅1 ー 近隣駅2 ー
費用/契約
-
造作価格 ー 賃料(坪単価) 660,000円(12,583円) 管理費/共益費(坪単価) ー(ー) 保証金/敷金 0ヶ月 / 8ヶ月 償却 0% 礼金 1ヶ月 更新料/再契約料 ー その他費用 駐車場:44,000円/月 仲介手数料 1ヶ月 その他手数料 ー 契約期間 2年 契約種別
用途
-
物件の現況 サービス(その他) 可能用途 指定あり 坪数 52.45坪
- 備考



















