物件ID:198432
情報公開日:2026年04月08日
情報更新日:2026年04月08日
立地
-
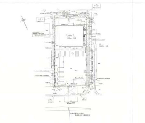
住所 神奈川県横浜市泉区中田西一丁目6-7 建物名/所在階 横浜市泉区中田西1丁目/1階 最寄駅 ブルーライン立場駅
徒歩3分近隣駅1 ー 近隣駅2 ー
費用/契約
-
造作価格 ー 賃料(坪単価) 1,320,000円(22,771円) 管理費/共益費(坪単価) ー(ー) 保証金/敷金 ー / 10ヶ月 償却 ご相談 礼金 1ヶ月 更新料/再契約料 1ヶ月 その他費用 ー 仲介手数料 1ヶ月 その他手数料 ー 契約期間 10年 契約種別 普通賃貸借
用途
-
物件の現況 ー 可能用途 何業も可 坪数 57.97坪
- 備考





















