物件ID:198260
情報公開日:2026年04月16日
情報更新日:2026年04月16日
立地
-
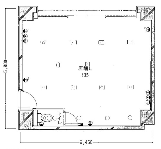
住所 東京都中野区本町四丁目38-18 建物名/所在階 ウイング新中野105/1階 最寄駅 東京メトロ丸ノ内線新中野駅
徒歩4分近隣駅1 ー 近隣駅2 ー
費用/契約
-
造作価格 ー 賃料(坪単価) 300,000円(27,297円) 管理費/共益費(坪単価) 30,000円(2,729円) 保証金/敷金 6ヶ月 / ー 償却 1ヶ月 礼金 1ヶ月 更新料/再契約料 1ヶ月 その他費用 ー 仲介手数料 1ヶ月 その他手数料 ー 契約期間 2年 契約種別
用途
-
物件の現況 エステ・マッサージ・サロン 可能用途 何業も可 坪数 10.99坪
- 備考
- 鍋屋横丁通りからすぐ!飲食相談◎1階路面店舗
整骨院居ぬき、トイレ・エアコン無償譲渡◎
スケルトン引き渡し相談◎





















