物件ID:198136
情報公開日:2026年04月07日
情報更新日:2026年04月07日
立地
-
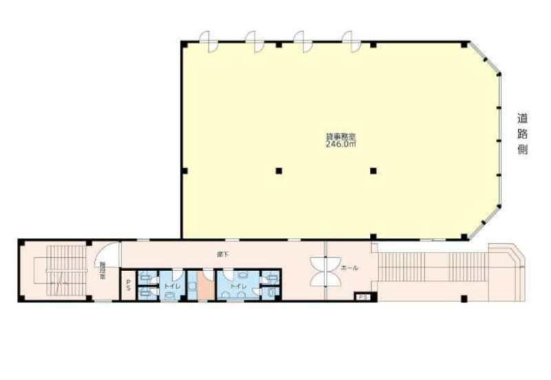
住所 神奈川県横浜市港南区港南台四丁目17-22 建物名/所在階 キタミビル/2階 最寄駅 JR根岸線港南台駅
徒歩2分近隣駅1 ー 近隣駅2 ー
費用/契約
-
造作価格 ー 賃料(坪単価) 814,000円(10,938円) 管理費/共益費(坪単価) ー(ー) 保証金/敷金 7,400,000 / 0ヶ月 償却 ご相談 礼金 1ヶ月 更新料/再契約料 ー その他費用 ー 仲介手数料 1ヶ月 その他手数料 ー 契約期間 15年 契約種別
用途
-
物件の現況 ー 可能用途 指定あり 坪数 74.42坪
- 備考



















